◆終了しました
【3/20】中古住宅オープンハウス@新別府町
- 日時:3/20(水曜祝日)10:00~17:00
- 場所:宮崎市新別府町字薗田123-3

LDK20帖以上!小中学校まで徒歩10分圏内♪
販売見学会を開催致します。
お気軽にご予約ください♪
築23年の温もりと、新たな始まりを受け継ぐ家

Point
LDK20帖以上!
小中学校まで徒歩10分圏内
駐車場は2台分を確保
リビング吹き抜けで明るく開放感のある空間
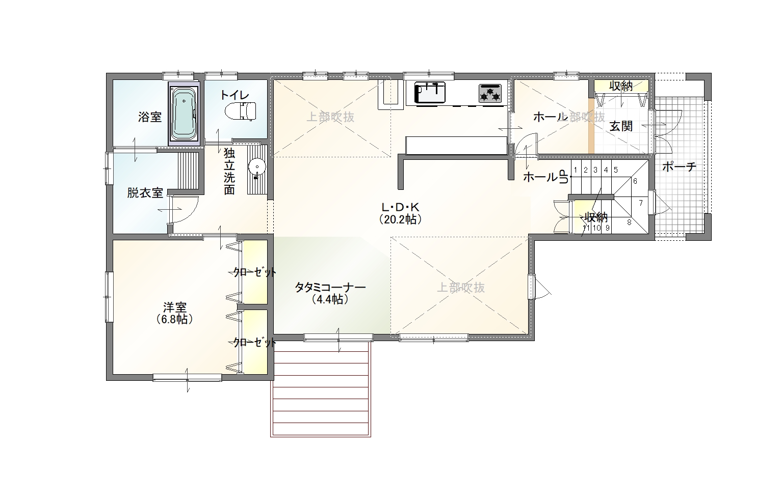
Plan
1F

2F

Plan/LDK20帖以上/小中学校まで徒歩10分圏内/2LDK+書斎+タタミコーナー
延床面積/132.25㎡・40.01坪
特別販売見学会開催
日時:[2024.3.20(水曜祝日) 10:00~17:00]
場所:宮崎市新別府町薗田123-3
|
和室 |
リビング |
キッチン |
|
玄関 |
キッチン |
ダイニング |
|
1Fトイレ |
脱衣室 |
浴室 |
|
吹抜け |
1F寝室 |
独立洗面 |
見学会のポイント
実際の住空間を体感できる絶好のチャンス。
専門のスタッフが物件の詳細や購入プロセスをご案内。
.jpg)
生活に便利な環境が整っています。
周辺情報
-
交通
西新別府バス停留所 400m 徒歩 約5分 -
環境
あおき保育園 750m 車 約2分 檍北小学校 450m 徒歩 約6分 檍中学校 700m 徒歩 約10分 -
周辺施設
イオンモール宮崎店 700m 車 約3分 ドラッグストアコスモス 新別府店 550m 車 約2分
[物件概要]
| 所在地 | 宮崎市新別府町字薗田123-3 |
|---|---|
| 価格 | 21,800,000 |
| 敷地面積 | 184.63㎡(55.85坪) |
| 建物面積 | 132.25㎡(40.01坪) |
| 学校区 | 檍北小学校・檍中学校(小中学校まで徒歩10分圏内) |
| 権利の種類 | 所有権 |
| 用途地域 | 第一種低層住居専用地域 |
| 地目 | 宅地 |
| 都市計画 | 市街化区域 |
| 建ぺい率 | 60% |
| 容積率 | 100% |
| 接道幅等 | 5.4m |
| 接道接面 | 間口10.5m |
| 接道状況 | 東道路 |
| 間取り | LDK20帖以上・2LDK+書斎+タタミコーナー+大きな収納 |
| 築年月 | 2001年12月 |
| 現況 | 内覧予約制 |
| 取引態様 | 仲介 |











